Исследования
Ревитализация
Новое строительство
В стадии реализации
Дом Мельникова Реставрация

  • Реставрация отверстия для верхнего и нижнего шпингалета
  • Реставрация петель

Консервация

Дом Мельникова Реставрация

Консервация. Подлинные элементы, хранящие память семьи

Дом Мельникова Реставрация

Консервация. Винтовая лестница, перила, двери

Дом Мельникова Реставрация

Консервация. Двери

Дом Мельникова Реставрация

Консервация. Экран на кухне, холодильный шкаф

Дом Мельникова Реставрация

  • Укрепление ступеней лестницы
  • Укрепление косоуров лестницы

Дом Мельникова Реставрация

Консервация. Междуэтажная лестница

Дом Мельникова Реставрация

Консервация. Двери в гостиную

Дом Мельникова Реставрация

Консервация. Двери в гостиную, горка для цветов

Дом Мельникова Реставрация

  • Укрепление ступеней лестницы на антресоль
  • Укрепление перил лестницы
  • Укрепление и покраска перил антресоли
  • Консервация авторского столика К.С. Мельникова
  • Ремонт штукатурного покрытия антресоли, перекраска

Консервация: Антресоль, перила, двери, столик

Консервация: Антресоль, перила

  • Укрепление ступеней лестницы на антресоль
  • Укрепление перил лестницы
  • Укрепление и покраска перил антресоли
  • Консервация авторского столика К.С. Мельникова
  • Ремонт штукатурного покрытия антресоли, перекраска

Читать статью
с начала
6
5
1
2
3
4
Дом Мельникова Реставрация

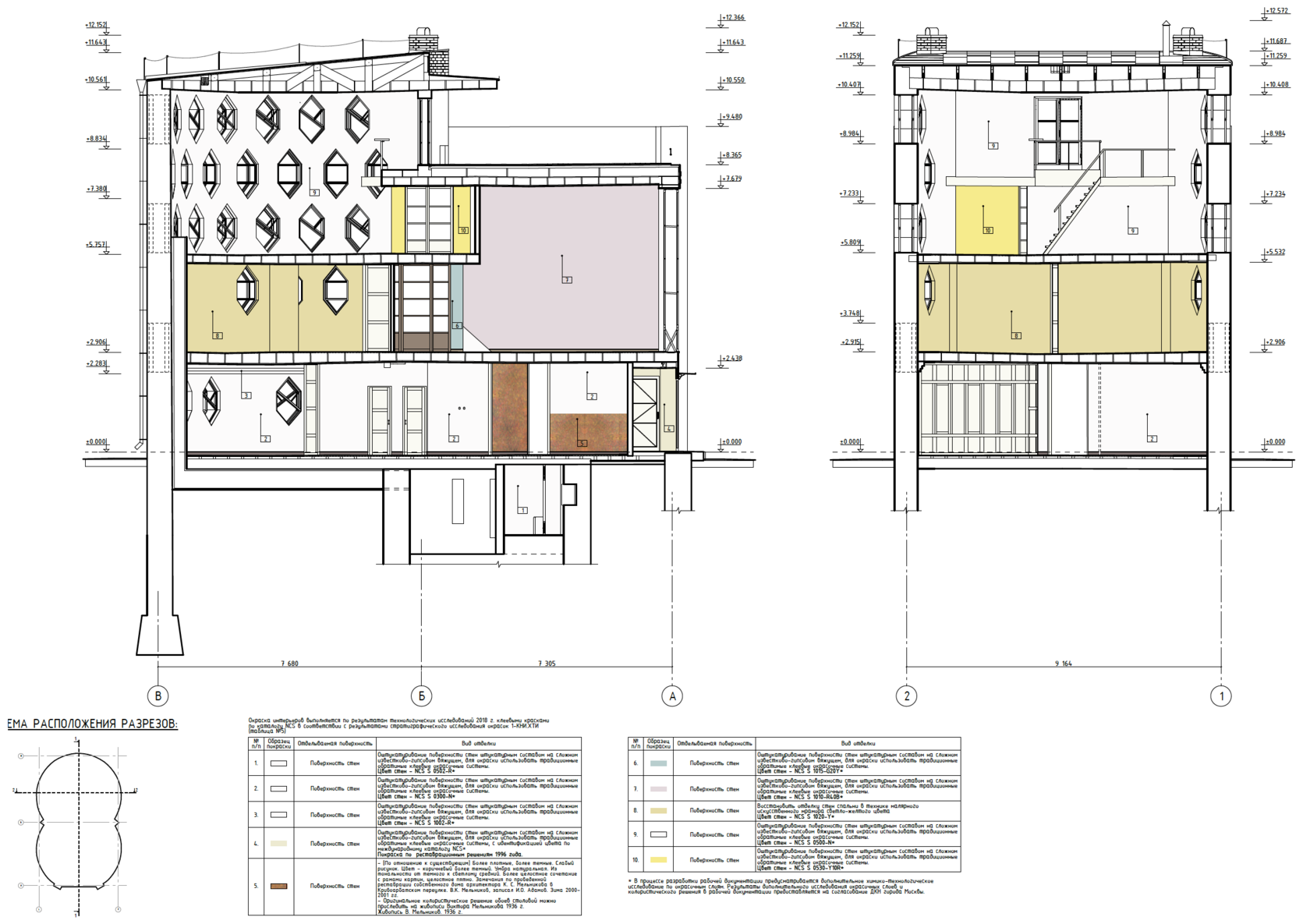
Проект сохранения. Планы потолков

Дом Мельникова Реставрация
Дом Мельникова Реставрация
Дом Мельникова Реставрация
Дом Мельникова Реставрация
Дом Мельникова Реставрация
Дом Мельникова Реставрация
Дом Мельникова Реставрация
Дом Мельникова Реставрация

Проект сохранения

Дом Мельникова Реставрация

Проект сохранения. Планы полов

Дом Мельникова Реставрация
Дом Мельникова Реставрация

В 2014 году объект культурного наследия федерального значения «Экспериментальный жилой дом, 1927−1927 гг., арх. Мельников К.С.» становится Музеем Константина и Виктора Мельниковых — филиалом Музея архитектуры им. А. В. Щусева и открывается в тестовом режиме для ежедневного экскурсионного посещения. Весной 2015 года двор был благоустроен и открыт для посещения, установлено новое ограждение участка по всему периметру. Ограждение выполнено по реставрационному проекту, на основании обмерных чертежей 1996−1997 гг., с воссозданием оригинальной калитки и ворот. В настоящее время территория двора, получившая большую популярность в качестве общественного культурного пространства, становится частью экспозиции музея: восстановлены на старых местах цветники, огород, старые садовые деревья плодоносят и поддерживаются в хорошем состоянии. В северо-восточном углу участка расположено хозяйственное строение (музейный киоск), воссозданного в 2018 г. на месте разобранного в 1940 г. хозяйственного сарая.

Историческая справка

Площадка, отведенная К. С. Мельникову для возведения показательного дома, была пустырем, в северо-восточной части которого росли два бальзамических тополя, зафиксированных на ряде снимков 1920-х годов. Ограждение деревянный забор — авторской конструкции с двумя боковыми воротами и центральной калиткой, представлявшей собой тамбур в форме четверти небольшого цилиндра, вдававшегося в пространство парадного двора. Передний двор, включивший территорию планировавшегося к расширению переулка, ближе к дому был засажен цветами. Перед домом была организована площадка с отходящими от нее тремя дорожками к воротам и калитке и двумя, огибающими дом и уходящими в хозяйственную зону двора. Все дорожки были одернованы и посыпаны песком. Передний двор с двух сторон был отделен от остального участка низким металлическим ажурным ограждением для того, чтобы собака К. С. Мельникова не могла туда выходить. Ближе к переулку передний двор был засажен кустами сирени и саженцами белой акации.

Сразу за домом располагалась спортивная площадка для городков и волейбола — любимых игр семьи Мельниковых, имелись деревянные скамейки и стол. Огород и хозяйственная постройка располагался вдоль северной межи участка. В 1940-е годы сарай был разобран и выстроен вновь у северо- восточной границы участка. На этом месте сарай стоял, периодически обновляясь, вплоть до 1990-х годов. В дневниках 1930-го года подробно описано устройство полукруглой земляной террасы с откосами в углу участка. По всей видимости, речь идет о северо- восточном угле, где и в настоящее время имеется некоторое повышение рельефа, однако никаких изображений этой рукотворной террасы не найдено.

Благоустройство территотрии

  • На основании историко-культурных исследований, дендрологических, геодезических, экологических изысканиях, а также архитектурных натурных исследований, предлагается сохранение исторической планировочной структуры, зонирования и озеленения территории по авторскому замыслу К. С. Мельникова;
  • На основании архивных фотографий 1930-х годов воссоздать прямые углы клумб у южного фасада;
  • На основании архивных фотографий 1930-х годов воссоздается обрамление из бутового камня отмостки по периметру здания;
  • Устройство садового газона с дренированием дождевых и талых вод по периметру здания;
  • Перемещение выставочно-экспозиционных стендов, находящихся к северу от строения, к северо-западной границе, устройство на их месте устойчивого садового газона;
  • Организация вертикальной планировки территории, обеспечивающей требуемый уклон для водоотведения осадков;
  • Устройство газонов и дорожек, обеспечивающих дренирование ливневых осадков и паводковых вод на земельном участке;
  • Устройство выставочного стенда на территории объекта культурного наследия с информацией о ходе реставрации;
  • Разработка раздела безопасной эксплуатации в части благоустройства территории.
  • Сохранение гравийного покрытия дворовых дорожек территории в рамках приспособления к современному использованию (общедоступная территория для посетителей и плановых экскурсий)

Рекомендации по благоустройству территории

Дом Мельникова Реставрация

Дом Мельникова

2018 - н.в. Россия, Москва
Читать статью
с начала
6
5
1
2
3
4
Книга "Дом Мельникова"
О нас
RE: Школа
ab_rdnk@mail.ru
5
1
2
3
6
Читать статью
с начала
4