Research and Competitions
New Construction
In Progress
Revitalization

Administrative Building in Almaty

2014 – until now. Almaty, Kazakhstan

Reconstruction of an existing dilapidated house with its simultaneous transformation into a modern office building with an underground parking required careful consideration of several aspects, including the need to preserve the architectural integrity and the original compositional and spatial design of the entire environment, not to exceed the maximum height limits and to increase the total area of the building while adapting it to modern use. The solution offered for the faсades made it possible to repeat the rhythm and proportions of the surrounding architecture. Natural stone was offered as the perfect match for the existing faсade colors and finishes of the square ensemble. In addition, the project envisaged the construction of a new driveway to the parking area. The proposed solution also entailed the development of barrierfree pedestrian infrastructure, including pedestrian lanes between the administrative building under reconstruction and the neighboring educational center.

general view (before)
Administrative Building in Almaty
Administrative Building in Almaty
Administrative Building in Almaty
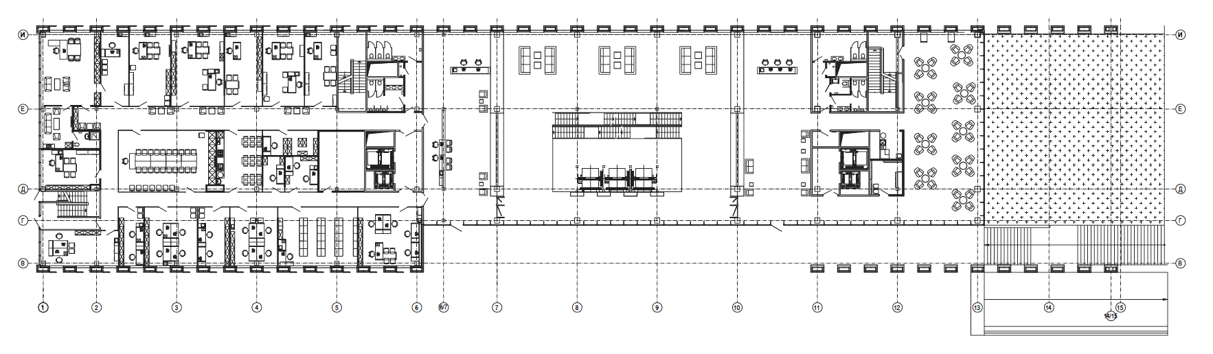
ground floor plan
interiors. 3d visualization
site plan
facade
comparative section
Administrative Building in Almaty
Administrative Building in Almaty
Administrative Building in Almaty
Administrative Building in AlmatyAdministrative Building in Almaty
Administrative Building in Almaty
About
RU
ab_rdnk@mail.ru
RE: Shkola