Исследования
Ревитализация
Новое строительство
В стадии реализации
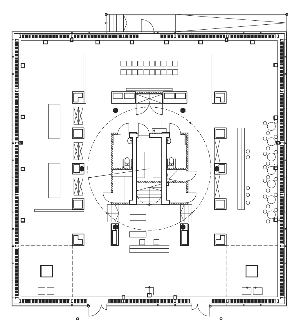
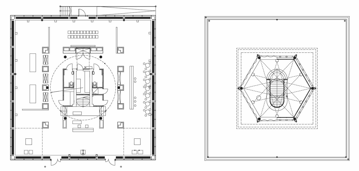
Павильон ВДНХ. Планы этажей

Вид до реконструкции

1-й этаж
Вид до реконструкции павильона ВДНХ
Вид до реконструкции павильона ВДНХ
План 1-го этажа

Проектное предложение

Проектное предложение реконструкции павильона ВДНХ
Павильон «Гидрометеорология» был возведён в 1952–1954-х годах архитекторами С. Матвеевым и Г. Семёновым. Сооружение было двухэтажным (первый этаж в плане квадратный, второй — шестигранный). Здание венчала башня в виде обрезанного конуса со шпилем. Фасады были украшены лепниной. Впоследствии пропорции и внешний вид здания были сильно изменены. В 1961 году была проведена реконструкция, тёплый контур павильона был расширен за счёт пристройки, декор был частично утрачен, также был демонтирован завершающий конус со шпилем.

Фасад

Разрез

Павильон ВДНХ. Фасад
Павильон ВДНХ. Разрез
Павильон ВДНХ. Фасад
Павильон ВДНХ. 1-й этаж
План 2-го этажа

Реконструкция павильона ВДНХ №16

2016-2017. Россия, Москва
Проект капитального ремонта павильона предусматривает приспособление объекта исторически ценной градостроительной застройки под информационный центр с сохранением существующей площади здания. Полностью сохраняется композиционное решение и архитектурно-художественное оформление фасадов 1954 года. Также сохраняется и реставрируется декоративное оформление интерьеров, лестница на второй этаж и зал второго этажа.

Позднее остекление первого этажа заменяется структурным остеклением с заполнением прозрачными двухкамерными стеклопакетами. Это обеспечивает визуальную лёгкость возводимых конструкций, которые по исполнению, деталировке и восприятию контрастируют с постройкой 1954 года и выявляют историческую часть здания, подчёркивая его безусловную ценность.
О нас
RE: Школа
ab_rdnk@mail.ru