Исследования
Ревитализация
Новое строительство
В стадии реализации

Флигель «Руина»
Музея архитектуры
имени А. В. Щусева

2014-2017. Россия, Москва
Несмотря на богатую историю флигеля, отправной точкой проекта стал последний и самый печальный этап в судьбе сооружения, которое буквально за несколько лет превратилось из ветхого, но вполне жизнеспособного здания в настоящую руину. За несколько лет до начала большой работы по созданию во флигеле современного выставочного пространства бюро под руководством Наринэ Тютчевой уже занималось этим объектом. В 2012 году здесь была организована выставка под названием «Руина». Версия архитектурного бюро «Рождественка». Именно тогда и наметились основные концептуальные подходы к реставрации здания. Предложения бюро исключали воссоздание объекта в том виде, в каком он находился до своего превращения в руину. По своему духу флигель должен был остаться руиной, но руиной, которой не угрожает исчезновение в пространстве, в которой кипит активная музейная жизнь. В результате получился объект-метафора.

Въезд в усадьбу Талызиных, фото конца 1920-х годов (из собрания Музея архитектуры имени А. В. Щусева)

Для многих европейских поселений с историей, уходящей в античность, древние руины давно уже стали привычной частью современного урбанистического ландшафта. В Риме, Афинах и многих других городах научились сохранять и гармонично включать в ткань мегаполиса останки зданий, напоминающих о былых цивилизациях. В российских городах руины далеко не всегда связаны с наследием глубокого прошлого. Многие здания, в том числе памятники истории и архитектуры, превратились в руины не тысячелетия назад, а совсем недавно, в конце XX века и, что удивительно, стали известны широкому профессиональному кругу уже в качестве руинированных объектов. Именно это произошло и с флигелем усадьбы Талызиных на Воздвиженке, где сейчас располагается один из корпусов Музея архитектуры имени Щусева.

История небольшого флигеля, в котором до революции находились каретный сарай, позже — казённая палата, а после 1917 года и вплоть до передачи комплекса зданий архитектурному музею — разнообразные советские учреждения, насчитывает несколько веков. Флигель был построен в конце XVIII века при одном из самых известных владельцев усадьбы — Александре Талызине. С тех пор это здание постоянно использовалось и стало руиной лишь в 90-х годах XX века, когда после пожара все попытки реставрации объекта оказались свёрнуты.
Флигель «Руина» Музея архитектуры имени А. В. Щусева
Въезд в усадьбу Талызиных, фото конца 1920-х годов

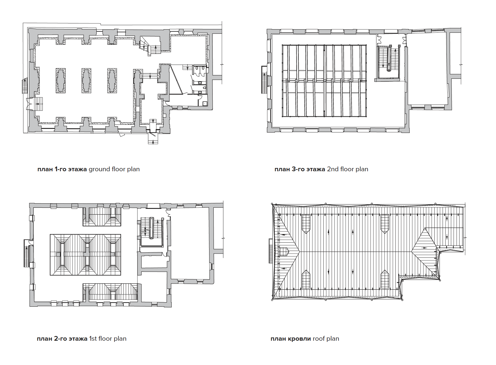
План 2-го этажа усадебного комплекса и планы флигеля

План 2-го этажа усадебного комплекса и планы флигеля
Усадьба Талызиных
Усадьба Талызиных

План усадьбы Талызиных, XIX век

План усадьбы Талызиных, XIX век

Проектное решение фасадов флигеля

Фрагмент А5 (фасад в осях 1–7); сверху вниз: картограмма дефектов, рекомендации по противоаварийным и консервационным работам
Проектное решение фасадов флигеля

Фрагмент 54 (план 2-го этажа); сверху вниз: картограмма дефектов, рекомендации по противоаварийным и консервационным работам

Схема очерёдности работ

Во время ремонта кладки каждый старый выпадающий кирпич был вынут, очищен, изучен на предмет клейм, проверен на прочность, а потом, по возможности, возвращён на своё место. К красочным слоям была применена технология фрагментарной расчистки, сохранения и укрепления, что представляло собой невероятную по кропотливости ручную работу.
Флигель «Руина» Музея архитектуры имени А. В. Щусева
Флигель «Руина» Музея архитектуры имени А. В. Щусева
В проекте окна флигеля остались без заполнения, как бы открытыми, из-за неясности того, как сделать штукатурные откосы. Стеклянные витражи было решено расположить с внутренней грани наружных стен, что стало серьёзной технической проблемой, поскольку в такой ситуации «точка росы» автоматически переносится внутрь помещения. Компания «Лик» — единственная смогла решить этот вопрос и тепловой контур здания был обеспечен.
Флигель «Руина» Музея архитектуры имени А. В. Щусева
Флигель «Руина» Музея архитектуры имени А. В. Щусева
Схема очерёдности работ
Флигель «Руина» Музея архитектуры имени А. В. Щусева
Флигель «Руина» Музея архитектуры имени А. В. Щусева
Схема очерёдности работ
Флигель «Руина» Музея архитектуры имени А. В. Щусева
Флигель «Руина» Музея архитектуры имени А. В. Щусева
Флигель «Руина» Музея архитектуры имени А. В. Щусева
Флигель «Руина» Музея архитектуры имени А. В. Щусева
Флигель «Руина» Музея архитектуры имени А. В. Щусева
Флигель «Руина» Музея архитектуры имени А. В. Щусева
Флигель «Руина» Музея архитектуры имени А. В. Щусева
Флигель «Руина» Музея архитектуры имени А. В. Щусева
Флигель «Руина» Музея архитектуры имени А. В. Щусева
Флигель «Руина» Музея архитектуры имени А. В. Щусева
Флигель «Руина» Музея архитектуры имени А. В. Щусева
Флигель «Руина» Музея архитектуры имени А. В. Щусева
О нас
RE: Школа
ab_rdnk@mail.ru