Research and Competitions
New Construction
In Progress
Revitalization

Melikhovo.
Reconstruction of the museum complex

2023 - 2024 Russia, Melihovo village

State Autonomous Cultural Institution of the Moscow Region "State Literary and Memorial Museum of A. P. Chekhov's Reserve "Melikhovo".

Melikhovo. Reconstruction of the museum complex
Melikhovo. Reconstruction of the museum complexMelikhovo. Reconstruction of the museum complex
Visualization
Melikhovo. Reconstruction of the museum complex
Melikhovo. Reconstruction of the museum complex

View from literary garden

Melikhovo. Reconstruction of the museum complex
Melikhovo. Reconstruction of the museum complex

View from the entrance to the territory

Melikhovo. Reconstruction of the museum complex

Café area

Visit Center Building
Melikhovo. Reconstruction of the museum complex
Plan
Facades. Sections. Installation. Dismantling
Melikhovo. Reconstruction of the museum complex

Café area / Entrance area

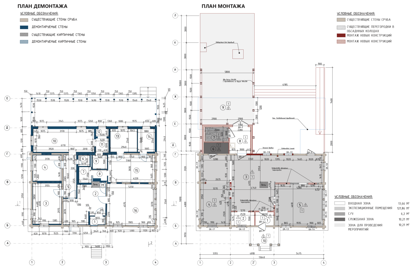
Dismantling and installation plan

Gift store area

Facades. Sections. Installation. Dismantling
Melikhovo. Reconstruction of the museum complex
Melikhovo. Reconstruction of the museum complex
Facades. Coloristics

Interiors of the Visit Center. Service area

Melikhovo. Reconstruction of the museum complex
Administration building
Existing situation
Melikhovo. Reconstruction of the museum complex
Existing situation
Service Outbuilding. Food Block Building
Melikhovo. Reconstruction of the museum complexMelikhovo. Reconstruction of the museum complex

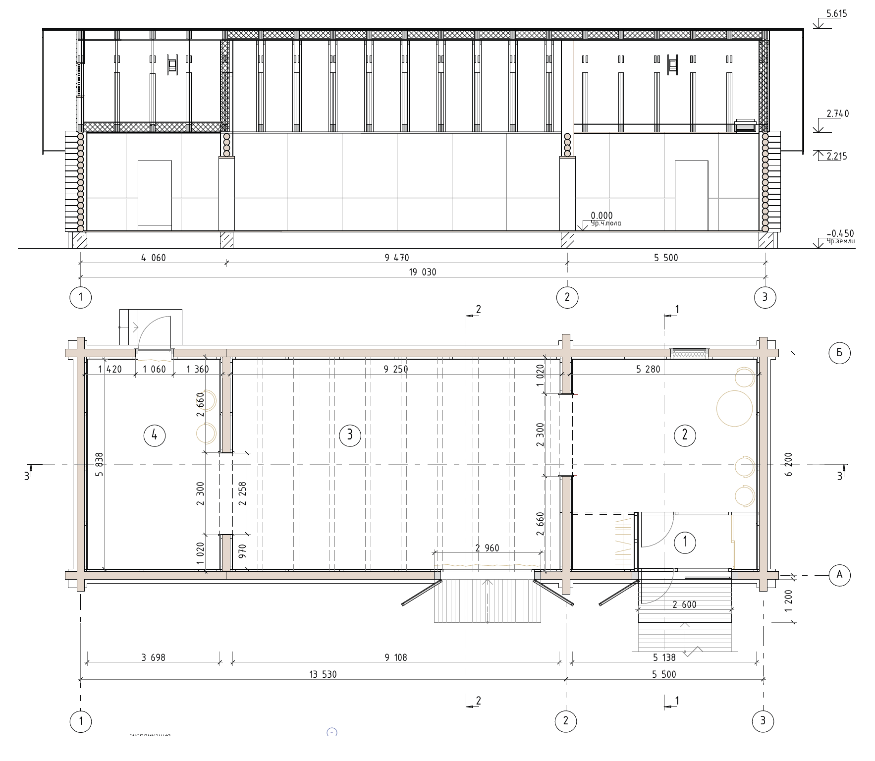
Plan of the 1st floor. Functional zoning

Exterior

Melikhovo. Reconstruction of the museum complex
Section 1-1. Facades
Melikhovo. Reconstruction of the museum complexMelikhovo. Reconstruction of the museum complex
Melikhovo. Reconstruction of the museum complex
Melikhovo. Reconstruction of the museum complex
Interior
Melikhovo. Reconstruction of the museum complex
The building of the Stables with a carriage barn
Photofixation
Melikhovo. Reconstruction of the museum complexMelikhovo. Reconstruction of the museum complex
Melikhovo. Reconstruction of the museum complexMelikhovo. Reconstruction of the museum complex
Plan of the 1st floor. Longitudinal section
Engineering and Utility Block Building
Plan of the 1st floor. Functional zoning
Melikhovo. Reconstruction of the museum complex
Facades
Melikhovo. Reconstruction of the museum complex
Visualization
Interior of the Lobby
Melikhovo. Reconstruction of the museum complex
Grand Exhibition Hall

Chekhov Center

Melikhovo. Reconstruction of the museum complex
Conceptual proposal
Small Exhibition Hall
Melikhovo. Reconstruction of the museum complex
Exhibition Hall
Visualizations
Melikhovo. Reconstruction of the museum complex
Melikhovo. Reconstruction of the museum complexMelikhovo. Reconstruction of the museum complex
Melikhovo. Reconstruction of the museum complexMelikhovo. Reconstruction of the museum complex
Melikhovo. Reconstruction of the museum complex
About
RU
ab_rdnk@mail.ru
RE: Shkola