Исследования
Ревитализация
Новое строительство
В стадии реализации
Генплан
План 1-го этажа
План типового этажа
Жилой комплекс в Химках
Жилой комплекс в Химках. Генплан
Жилой комплекс в Химках
Жилой комплекс в Химках
Жилой комплекс в Химках
Жилой комплекс в Химках
Жилой комплекс в Химках

Жилой комплекс в Химках

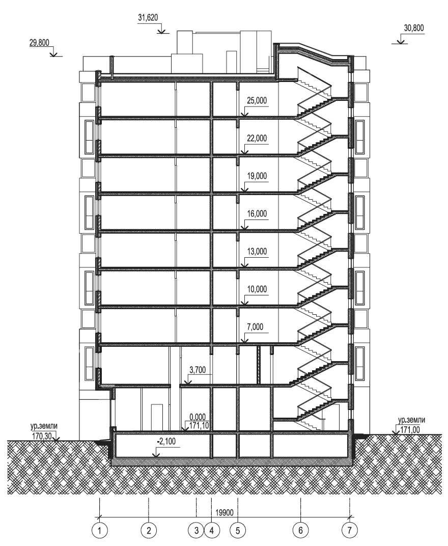
2013. Россия, Химки
Участок расположен на склоне реки, перепад рельефа с севера на юг порядка 18 метров. Генеральный план и планировочная структура зданий решены таким образом, чтобы из каждой квартиры открывался вид на реку. Задачей заказчика было вписаться в бюджет 40 тыс. рублей за квадратный метр, включая не только сами здания, но и подземный паркинг, благоустройство территории с инженерной инфраструктурой, что примерно соответствует стоимости привязки типовых панельных домов.

Экономии удалось достичь за счёт максимально эффективного соотношения жилой и общей площади и этажности в 8-9 этажей, которая предполагает наличие одного лифта. Первые этажи зданий, большей частью нежилые, отданы под общественную и коммерческую функцию, а также детский сад.
Жилой комплекс в Химках
О нас
RE: Школа
ab_rdnk@mail.ru