Исследования
Ревитализация
Новое строительство
В стадии реализации

Реставрация «Палат Брюса»

2004-2010. Россия, Москва
Реставрация 8-го строения завершена в 2008 году, и в его стенах разместился Союз музыкальных деятелей. Что касается 9-го строения, то его судьба оказалась сложнее. Заказчику пришлось пойти на непредвиденные траты, связанные с реставрацией флигеля — сделали вычинку, облегчили здание, сняв надстройку, инъектировали фундамент.

На фасаде был восстановлен декор XVIII века, белокаменные детали — большей частью подлинные. Удалось подвести под здание подвал, где разместились все технические помещения, которые занимали сводчатые палаты. Строительство новой надстройки вместо разобранной — это компенсация инвестору за его терпение и непредвиденные расходы.

Из множества был выбран вариант стеклянной надстройки, по форме напоминающей высокую барочную кровлю. В результате сегодня фасад надстройки выглядит уходящей внутрь стеклянной гармошкой, что визуально скрадывает размеры.
Ситуационный план
До реставрации
Палаты Брюса до реставрации
Палаты Брюса
После реставрации
Палаты Брюса после реставрации
Палаты Брюса
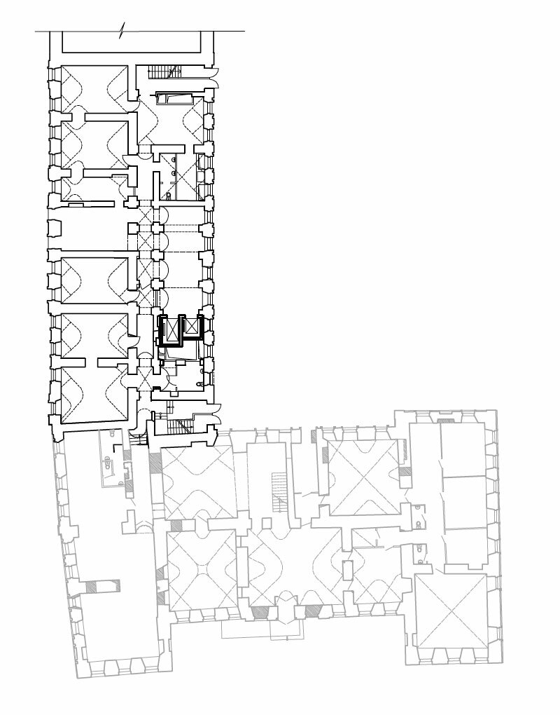
В результате конкурса заказчику достался комплекс из федерального памятника — строение 8, и непамятника — постройки 1930-х — строение 9. Это подразумевало реставрацию одного с приспособлением под общественно-культурную функцию и снос другого строения с последующим строительством бизнес-центра. А потом выяснилось, что флигель — также памятник XVIII века с двухэтажной надстройкой 30-х годов в ужасном техническом состоянии.
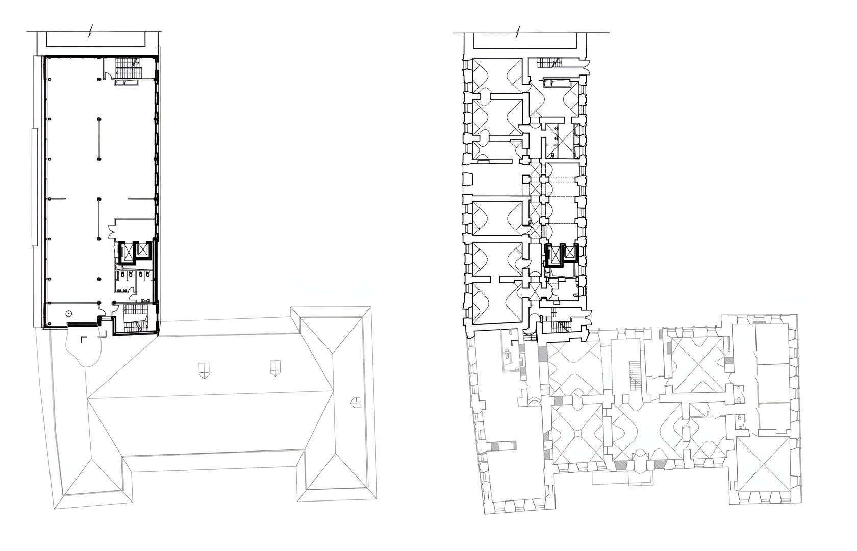
План Палат Брюса
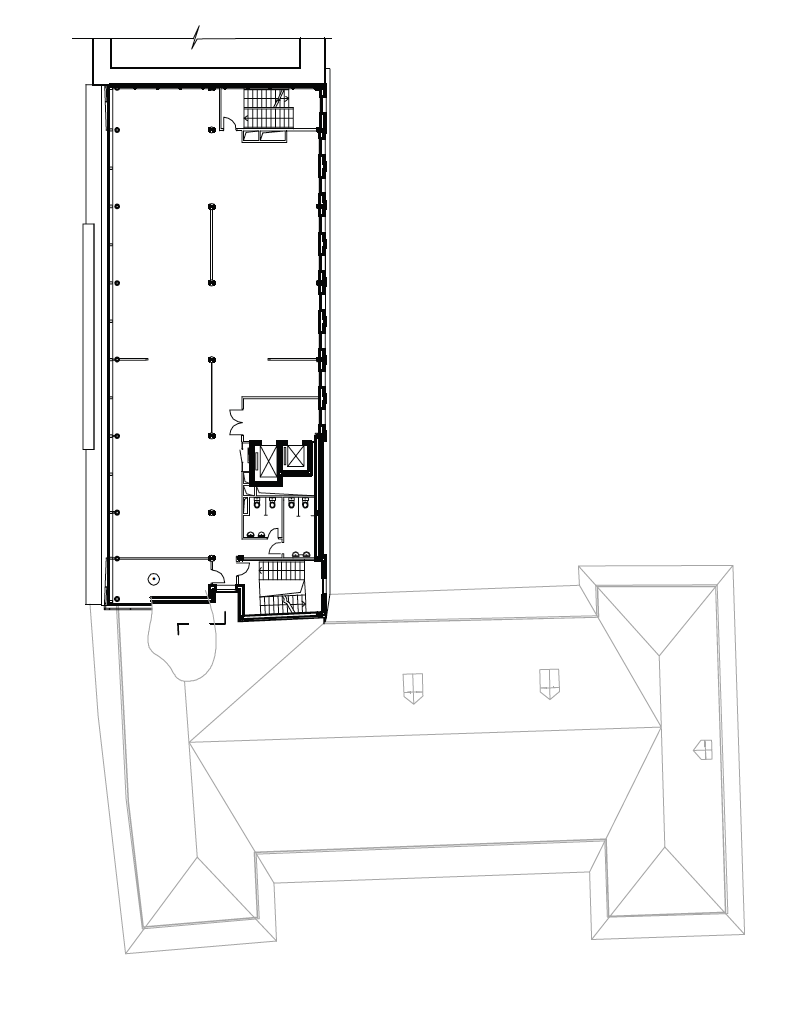
План 5-го этажа (строение 9)
План 1-го этажа (строение 9)

Фасады после реставрации (строение 8)

Фасады Палат Брюса
Разрез (строение 9)
Есть один аргумент в пользу выбранной формы — технический: фасад обращён на юго-запад, с этой стороны идёт очень сильный перегрев, но при помощи наклонного фасада и плоскости наклона стёкол расчётный перегрев удалось снизить на 40%. Кроме этого, удалось решить проблему аккуратного примыкания перекрытия к стеклу.
Палаты Брюса. Разрез

Фасады по Брюсову переулку с надстройкой (строение 9)

Фасады по Брюсову переулку
Брюсов переулок
О нас
RE: Школа
ab_rdnk@mail.ru