Research and Competitions
New Construction
In Progress
Revitalization

Berezhki.
Five-star hotel and recreation complex

2023 - 2024 Russia, Moscow region, Solnechnogorsky district, Berezhki village
Berezhki. Five-star hotel and recreation complex
Location of the design area
Existing situation

Axonometric scheme of the territory

Reconstructive measures
Formation
Master Plan

The garden inside the gallery

Scheme of functional zoning of buildings
Transportation and pedestrian scheme
General plan of the basement floor of the main buildings
General plan of the 1st floor of the main buildings
General plan of the 2nd floor of the main buildings

Building No.1. Hotel

Reconstruction
Building No. 1. Photofixation

Building No. 1: Axonometric scheme of reconstruction measures

Building No.1. Floor plans of the building

Building No.1. Facades
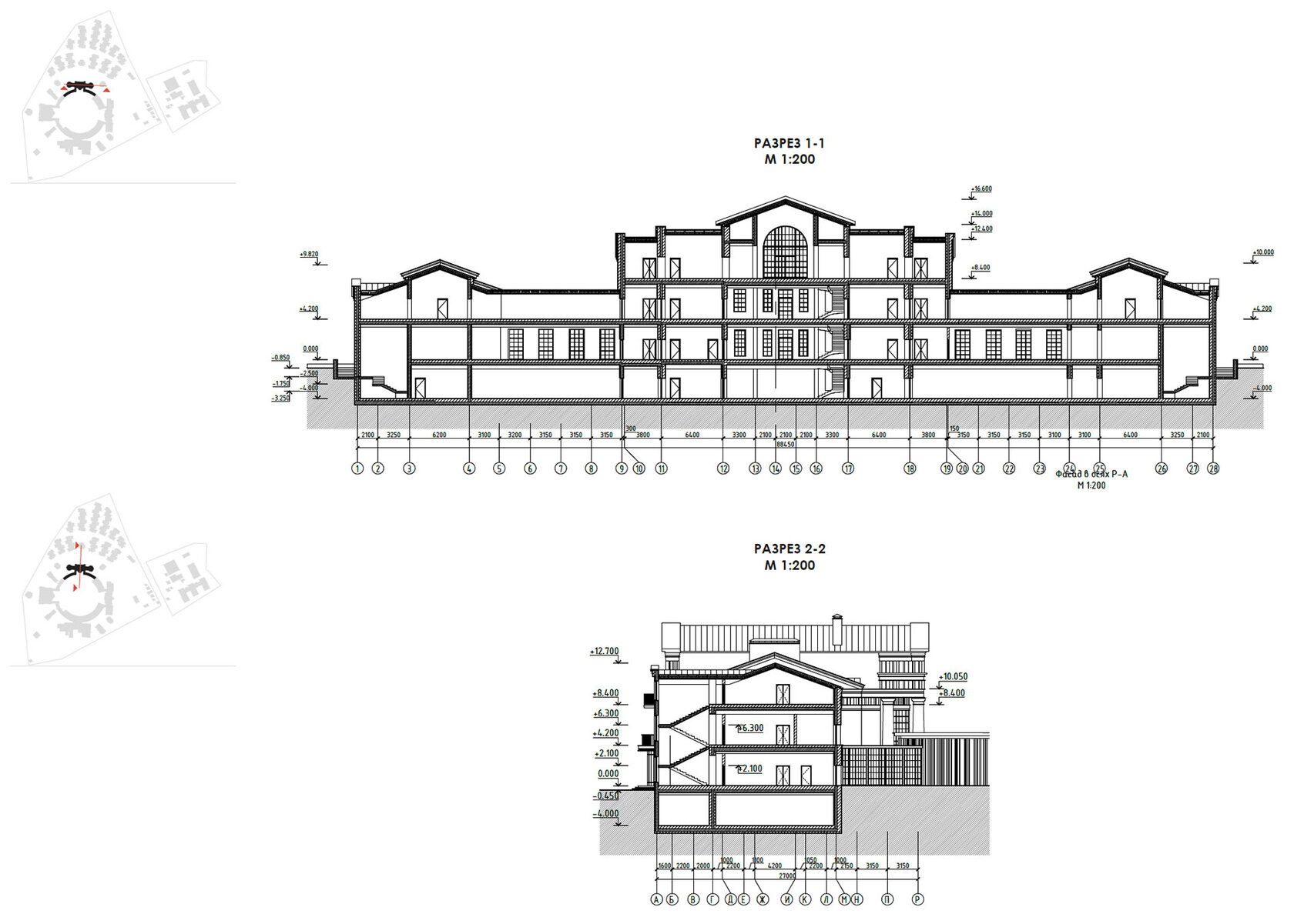
Building No.1. Section 1-1, Section 2-2, Section 3-3 M 1:200
Building No.1. Axonometric view
Building No.1. Perspective view
Berezhki. Five-star hotel and recreation complex
Berezhki. Five-star hotel and recreation complex
Berezhki. Five-star hotel and recreation complex

Building No. 2. SPA-Complex with a hotel

Reconstruction
Building No.2. Photofixation
Building No.2. Axonometric scheme of reconstructive measures
Floor plans
Building No.2. Facade in Axes 1-27, Facade in Axes SH-B2 M 1:200
Building No.2. Section 1-1 scale 1:200, Section 2-2 scale 1:200
Building No.2. Axonometric view
Berezhki. Five-star hotel and recreation complex
Building No.2. Perspective view
Berezhki. Five-star hotel and recreation complex
Berezhki. Five-star hotel and recreation complex
Berezhki. Five-star hotel and recreation complex
Berezhki. Five-star hotel and recreation complex
Berezhki. Five-star hotel and recreation complex

Building No. 3. Conference hall with restaurant

Reconstruction
Building No. 3. Photofixation
Building No. 3. Axonometric scheme of reconstructive measures
Building No. 3. Floor plans
Building No. 3. Facades
Building No. 3. Section 1-1, Section 2-2, Section 3-3 M 1:200
Building No. 3. Axonometric view
Berezhki. Five-star hotel and recreation complex
Building No. 3. Perspective view
Berezhki. Five-star hotel and recreation complex
Berezhki. Five-star hotel and recreation complexBerezhki. Five-star hotel and recreation complex
Building No. 3. Perspective view. Facade fragment
Berezhki. Five-star hotel and recreation complex

Building No. 4. Hotel

Reconstruction
2
1
Read more
Building No. 4. Photofixation
Building No. 4. Axonometric scheme of reconstructive measures
Building No. 4. Basement floor plan at -3.800 scale 1:200
Building No. 4. Facades
Building No. 4. Section 1-1 scale 1:200, Section 2-2 scale 1:200
Building No. 4. Axonometric view
Berezhki. Five-star hotel and recreation complex
Building No. 4. Perspective view
Berezhki. Five-star hotel and recreation complex
Berezhki. Five-star hotel and recreation complex
Berezhki. Five-star hotel and recreation complex
Berezhki. Five-star hotel and recreation complex

Building No. 2.1. Electric vehicle garage

Reconstruction
Building No. 2.1. Photofixation
Building No. 2.1. Fragment of the master plan, Planning solutions
Building No. 2.1. Facades. Section
Berezhki. Five-star hotel and recreation complex
Building No. 2.1. Axonometric view
Berezhki. Five-star hotel and recreation complex
About
RU
ab_rdnk@mail.ru
RE: Shkola
Read more
1
2