Исследования
Ревитализация
Новое строительство
В стадии реализации
2
1
Читать статью
с начала
2
1
Читать статью
с начала
Корпуса №8.1-8.12. Гостевые Дома
Новое строительство
Корпус №8.1-8.12. Схема Генерального Плана
Корпус №8.1-8.12. Тип 1. Планировочные решения
Корпус №8.1-8.12. Тип 1. Разрезы М 1:150
Корпус №8.1-8.12. Тип 1. Фасады
Корпус №8.1-8.12. Тип 2. Планировочные решения
Корпус №8.1-8.12. Тип 2. Разрезы 5-5, 6-6, 8-8 М 1:150
Корпус №8.1-8.12. Тип 2. Фасады
Корпус №8.1-8.12. Тип 3. Планировочные решения
Корпус №8.1-8.12. Тип 3. Разрезы 1-1, 2-2, 3-3 М 1:150
Корпус №8.1-8.12. Тип 3. Фасады
Бережки. Гостинично-рекреационный комплекс пять звёзд
Бережки. Гостинично-рекреационный комплекс пять звёзд
Корпус №6.1. Въездная группа
Реконструкция
Корпус №6.1. Фотофиксация
Корпус №6.1. Планировочные решения
Корпус №6.1. Разрез 1-1, Разрез 2-2, Разрез 3-3, Разрез 4-4 М 1:50
Корпус №6.1. Фасады
Корпус №6.1. Перспективный вид
Корпус №7. Служебная Гостиница
Новое строительство
Корпус №7. План 1-го этажа М 1:50
Корпус №7. Фасады
Корпус №7. Перспективный вид

Корпус №6.2-6.5. КПП Территории Гостевых Домов

Новое строительство
Корпус №6.2-6.5. Планировочные решения
Корпус №6.2-6.5. Фасады
Корпус №6.2-6.5. Аксонометрический вид

Корпус №5. Павильон проката спортивного инвентаря

Новое строительство
Корпус №5. Фрагмент Генплана, Планировочные решения, Разрез
Корпус №5. Фасады
Корпус №5. Перспективный вид
Вилла №4.3 Гостевой дом
Реконструкция
Вилла №4.3 Фотофиксация
Вилла №4.3 Планировочные решения
Вилла №4.3 Фасады
Вилла №4.3 Разрез 1-1, Разрез 2-2 М 1:50
Вилла №3.3 Перспективный вид
Бережки. Гостинично-рекреационный комплекс пять звёзд
Бережки. Гостинично-рекреационный комплекс пять звёзд
Корпус №3.1 Перспективный вид
Бережки. Гостинично-рекреационный комплекс пять звёзд
Вилла №4.1 Перспективный вид
Вилла №4.3 Перспективный вид
Бережки. Гостинично-рекреационный комплекс пять звёзд
Вилла №4.1-4.2 Гостевой дом
Реконструкция
Вилла №4.1 Фотофиксация
Вилла №4.1 Планировочные решения
Вилла №4.1 Разрез 1-1 М 1:50, Разрез 2-2 М 1:50
Вилла №4.1 Фасады
Вилла №4.1 Аксонометрический вид

Интерьеры

"Ожившие сказочные образы, представленные в Русском искусстве, изящно переплетаются с классическими основами Итальянского Возрождения, создавая неповторимую симфонию красок и форм. Балет как символ грации и изящества, пронизывает каждый элемент интерьера и в каждой детали, будь то шелкография изголовья, цветы, переплетенные в абажуре торшера, или роскошное кресло, траслируется уважение к традициям и любовь к современному искусству".
Концепция и дизайн интерьеров резиденции Бережки реализованы бюро Front Architecture
Бережки. Гостинично-рекреационный комплекс пять звёзд
Бережки. Гостинично-рекреационный комплекс пять звёзд
Бережки. Гостинично-рекреационный комплекс пять звёзд
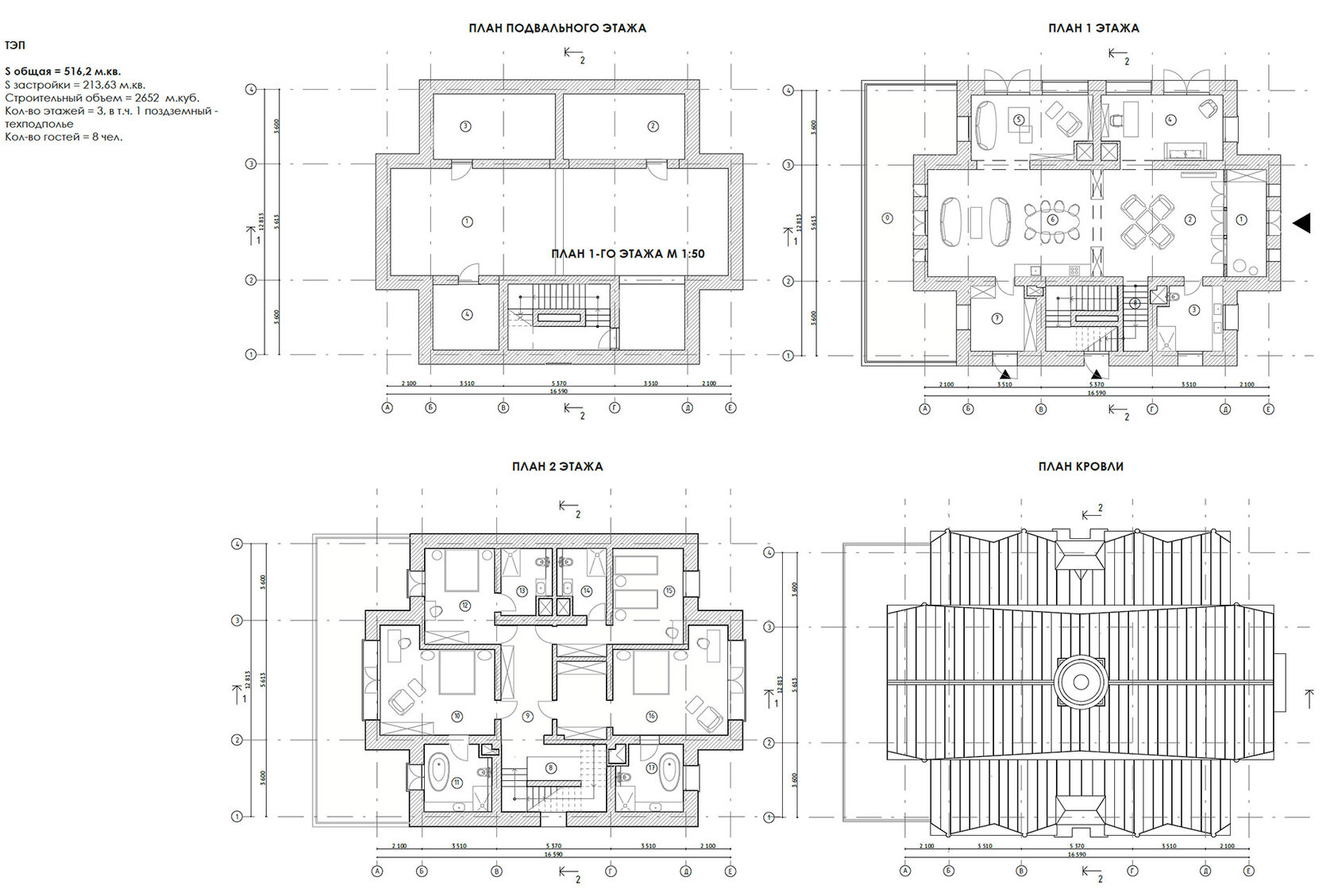
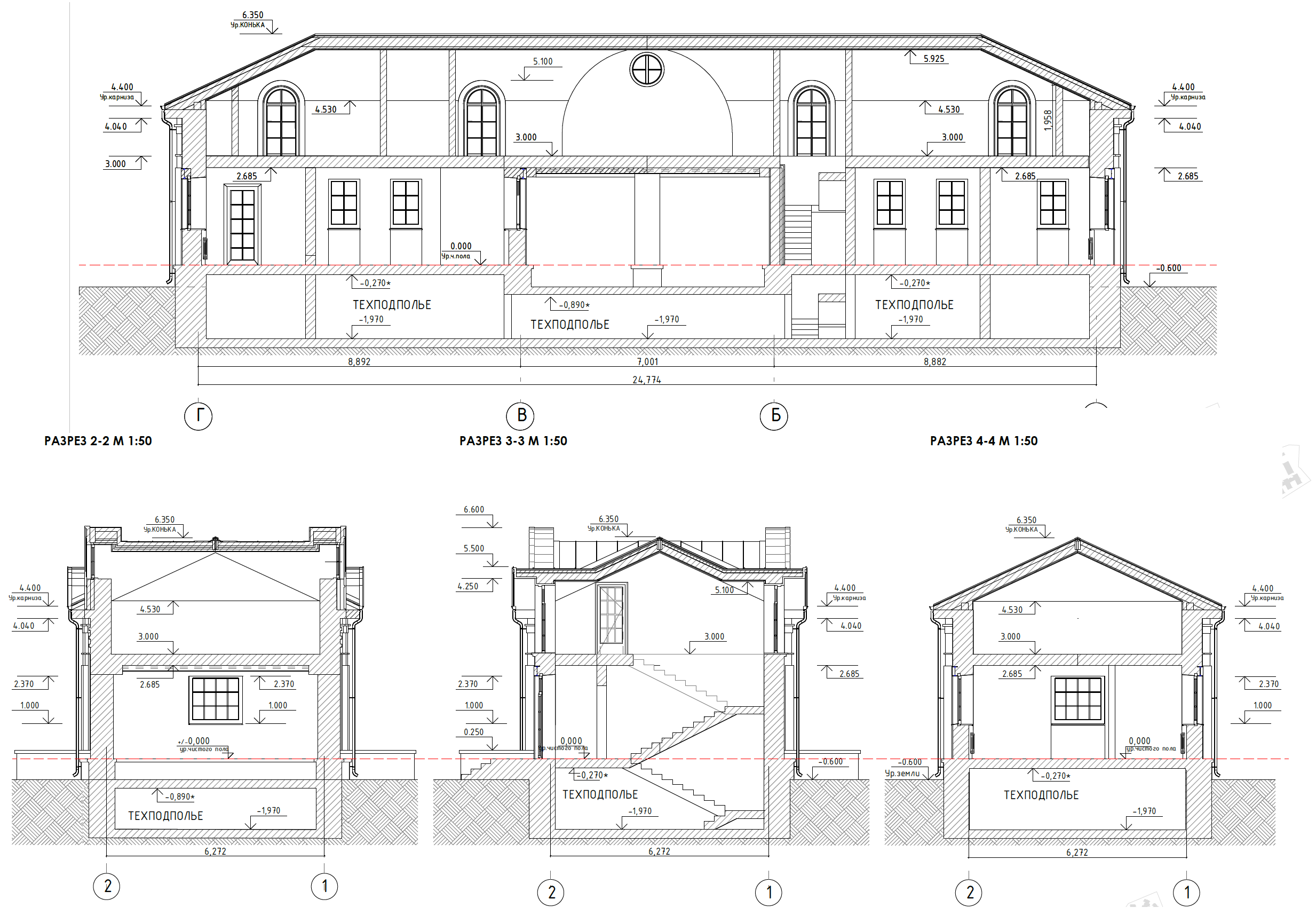
Вилла №3-3 Гостевой дом
Реконструкция
Вилла №3.3 Фотофиксация
Вилла №3.3 План подвального этажа М 1:50; План первого этажа М 1:50
Вилла №3.3 Разрез 1-1 М 1:50, Разрез 2-2 М 1:50
Вилла №3.3 Фасады
Вилла №3.3 Аксонометрический вид
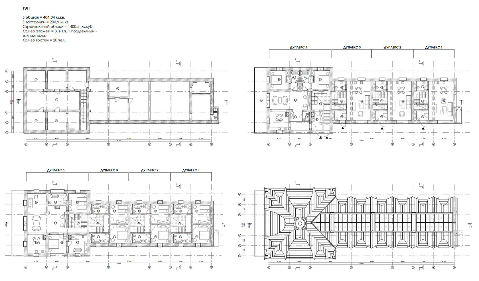
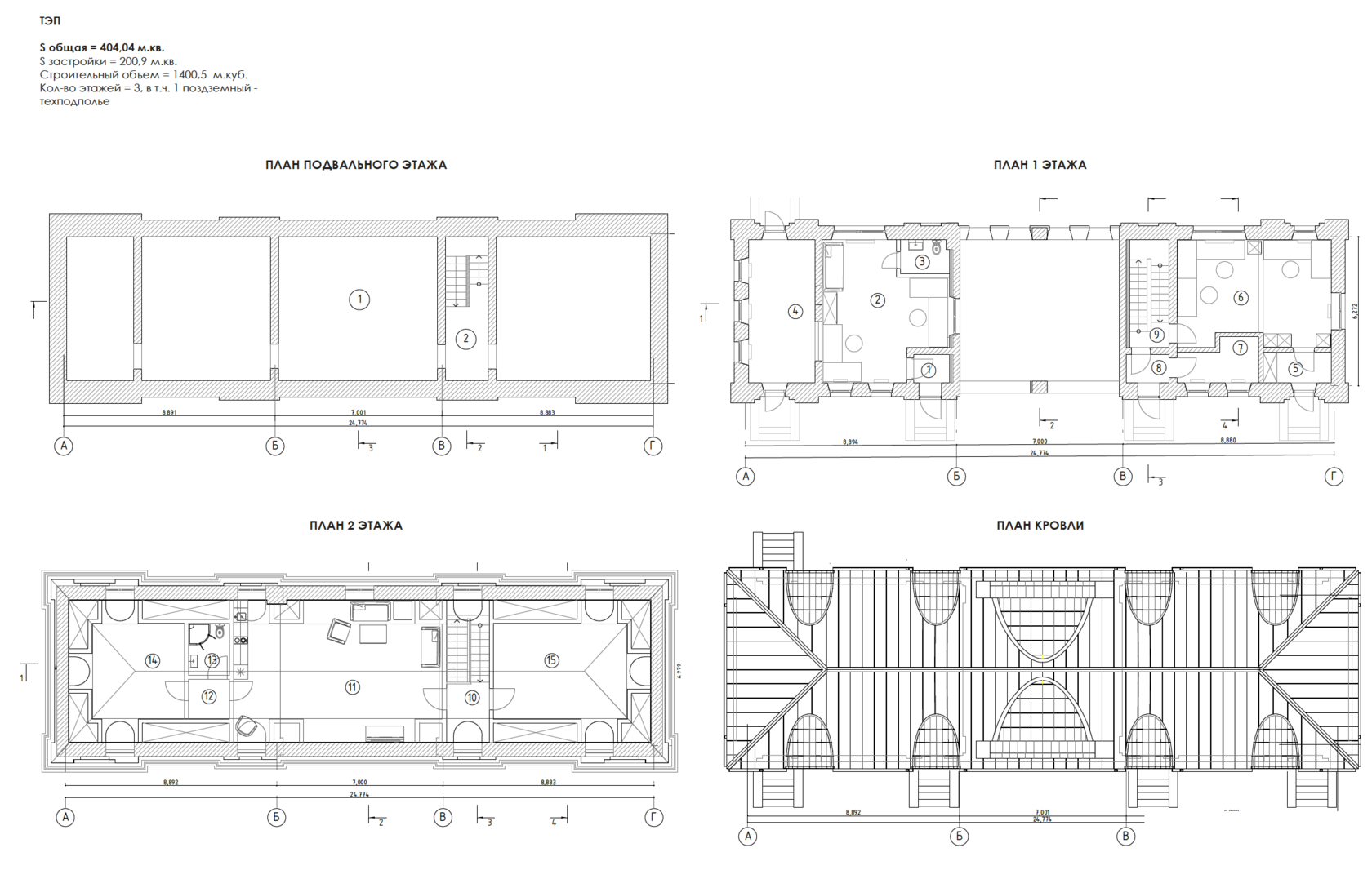
Корпус №3.1-3.2 Семейные дуплексы
Реконструкция
Корпус №3.1 Фотофиксация
Корпус №3.1 Планировочные решения
Корпус №3.1 Разрезы
Корпус №3.1 Фасады
Корпус №3.1 Аксонометрический вид
Корпус №1.1 Апартаменты управляющих
Реконструкция
Корпус №1.1 Фотофиксация
Корпус №1.1 Фрагмент СПОЗУ, Планировочные решения
Корпус №1.1 Фасады
Корпус №1.1 Разрез, Аксонометрический вид

Бережки.
Гостинично-рекреационный комплекс пять звёзд

2023 - 2024 Россия, Московская область, Солнечногорский район, деревня Бережки
О нас
RE: Школа
ab_rdnk@mail.ru
Читать статью с начала
1
2